世田谷区等々力1丁目

東急大井町線 尾山台駅 徒歩12分

東急大井町線 等々力駅 徒歩13分

22,800万円 (税込)

特徴

床暖房
駐車場2台以上
建物面積100m2以上
閑静な住宅街
道路6m以上 or 5m以上
低層住居専用地域

セールスコメント

◆南向き・高台 陽当たりに恵まれた邸宅◆

◎令和8年2月 リフォーム実施◎
リフォーム内容
■LDK
・フローリング張り替え
・エアコン交換
・システムキッチン交換
・床暖房交換(リビングダイニング)
■居室
・フローリング張り替え
・エアコン新規設置
・収納扉交換
■浴室・洗面所
・システムバス交換
・洗面化粧台交換
・床張り換え
■その他
・壁・天井クロス張り替え
・照明器具交換(一部既存利用)
・屋根張り替え
・外壁塗装    etc.

住所

所在地

世田谷区 等々力1丁目

設備・条件

高台に立地,緑豊かな住宅地,閑静な住宅地,整形地,都市ガス,テラス,トイレ2ヶ所,食器洗乾燥機,浄水器,複層ガラス,2面以上バルコニー,全居室フローリング,TVモニタ付インターホン,フローリング張替,温水洗浄便座,システムキッチン,対面式キッチン,通風良好,陽当り良好,即入居可,眺望良好,オートバス,浴室乾燥機,浴室1坪以上,浴室に窓,土地50坪以上,前道6m以上,南向き,駐車2台可,周辺交通量少なめ,内装リフォーム,外装リフォーム,内外装リフォーム,2階建,床暖房,全居室収納,屋根裏収納,LDK20畳以上,セキュリティ充実,建築確認完了検査済証,瑕疵保険,パントリー,小学校 徒歩10分以内

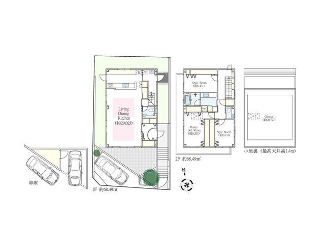
間取り

物件概要

物件番号 19590H00 交通機関 東急大井町線 尾山台駅 徒歩12分
東急大井町線 等々力駅 徒歩13分
所在地 世田谷区 等々力1丁目 販売価格 22,800万円 (税込) 土地面積 171.44m2 土地権利 所有権 地目 宅地 建物面積 136.98m2 建物構造 鉄骨造 2階建 現況 空家 築年月 平成14年8月 引渡時期 相談 駐車場 地下車庫 1台
カースペース 1台
間取り 3LDK    施工会社 - 用途地域 第1種低層住居専用地域 建ぺい率 40% 容 積 率 80% 道  路 南 6.1m 公道    私道負担 - セットバック - 他法令制限 宅地造成等規制区域,風致地区内,景観法
更新日 令和8年03月12日 次回更新 令和8年03月30日 取引態様 売主