目黒区鷹番2丁目

新着

東急東横線 学芸大学駅 徒歩5分

特徴

建物面積100m2以上
駅徒歩10分以内

セールスコメント

~学芸大学駅徒歩5分の確かな資産~
~利便性と静穏を兼ね備えた好立地~

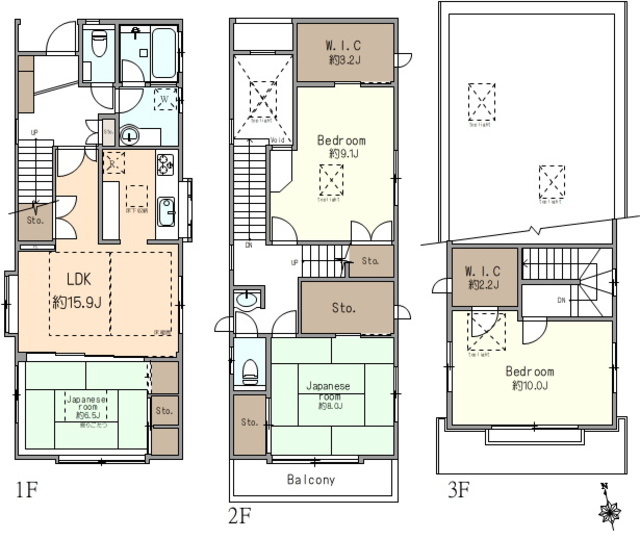
◎収納豊富な4LDK
◎1階天井高約2.7m
◎全居室6帖以上
◎容積率200%(※前面道路幅員により160%)
◎有効宅地面積30坪超

住所

所在地

目黒区 鷹番2丁目

設備・条件

-

間取り

物件概要

物件番号 19627H00 交通機関 東急東横線 学芸大学駅 徒歩5分 所在地 目黒区 鷹番2丁目 販売価格 13,980万円 土地面積 133.68m2 土地権利 所有権 地目 宅地 建物面積 137.13m2 建物構造 木造 3階建 現況 居住中 築年月 平成8年9月 引渡時期 相談 駐車場
間取り 4LDK    施工会社 住友不動産ホーム 用途地域 第1種中高層住居専用地域 建ぺい率 60% 容 積 率 200% 道  路 北 3.1m 私道    私道負担 - セットバック 14.68m2  土地面積に含む 他法令制限 準防火地域,景観法,航空法
※仮測量による土地面積129.57㎡(有効宅地面積114.89㎡・セットバック面積14.68㎡)
更新日 令和8年04月17日 次回更新 令和8年05月05日 取引態様 仲介

おすすめ物件! (アクセスの多い物件)