目黒区平町2丁目

東急東横線 都立大学駅 徒歩9分

東急目黒線 大岡山駅 徒歩15分

東急東横線 自由が丘駅 徒歩20分

特徴

LDK20畳以上
床暖房
駐車場2台以上
建物面積100m2以上
閑静な住宅街
道路6m以上 or 5m以上
リフォーム
低層住居専用地域
駅徒歩10分以内
2沿線以上利用可

セールスコメント

当社の専任販売物件です。

光と風が抜ける25帖の大空間LDKと大型ガレージ
3方向角地風のリノベーション住戸

既存住宅瑕疵保険加入予定

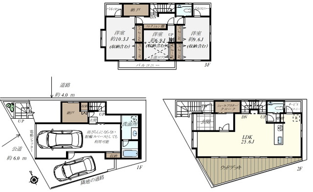
南向き25帖の大空間LDKは、広々としたウッドデッキとフラットに繋がり開放感があります。床暖房や造作棚、洗練された半透明扉など意匠美と機能性が息づく空間です。食洗機・浄水器完備のスタイリッシュなキッチンは、ダークトーンが目を引く主役級の存在感。ハイルーフ車2台駐車可能なガレージは、趣味やトレーニングルームとしても活用自在です。10帖超の主寝室やロフト付洋室、9.6帖の個室など全居室にゆとりを確保。大型玄関クロークや廊下棚など収納も充実。実質三方角地の立地で、豊かな光と風を享受できる邸宅です。

住所

所在地

目黒区 平町2丁目

設備・条件

高台に立地,緑豊かな住宅地,閑静な住宅地,整形地,都市ガス,ウッドデッキ,トイレ2ヶ所,食器洗乾燥機,複層ガラス,ロフト,南面バルコニー,2面以上バルコニー,全居室フローリング,TVモニタ付インターホン,温水洗浄便座,対面式キッチン,3面採光,通風良好,陽当り良好,浴室乾燥機,前道6m以上,ビルトガレージ,シャッタ−車庫,駐車2台可,ウォークインクロゼット,スーパーが近い,外装リフォーム,3階建以上,隣家との間隔が大きい,床暖房,全居室収納,納戸,全居室6畳以上,LDK20畳以上,2沿線以上利用可,シューズインクローク,パントリー,総合病院 徒歩10分以内,小学校 徒歩10分以内

間取り

360° Virtual Tour

担当

石井 邦曉
03-5729-1717
自由が丘店 営業部
役職:次長
資格:宅地建物取引士
住宅ローンアドバイザー
ファイナンシャルプランナー3級
私がおすすめしている物件はこちら
物件番号:19593H71
*お電話でお問い合せの際は物件番号をお伝え下さい。


東京都出身 昭和52年生れです。
お客様方と年齢が近いかもしれせん。

大田区の城南エリアで生まれ育ち、街の住みやすさを熟知しております。
まだ小さいですが、2人の子供にも恵まれ、
子育て環境の良さも実感しております。

不動産探しが初めてのお客様、
お探しや売却で行き詰まり感を感じている方も
是非、ご相談下さい。

夢と希望を持ってのマイホーム探しは、
とても楽しいものです。

そのお客様の気持ちを大事にして、
対応させて頂きたいと考えています。
きっと、お役に立てると思います。

宜しくお願い致します。

物件概要

物件番号 19593H71 交通機関 東急東横線 都立大学駅 徒歩9分
東急目黒線 大岡山駅 徒歩15分
東急東横線 自由が丘駅 徒歩20分
所在地 目黒区 平町2丁目 販売価格 20,800万円 土地面積 98.07m2 土地権利 所有権 地目 宅地 建物面積 166.43m2 建物構造 木造 一部RC造 3階建 現況 空家 築年月 平成16年10月 引渡時期 相談 駐車場 有 2台
間取り 3SLDK+N 施工会社 - 用途地域 第1種低層住居専用地域 建ぺい率 60% 容 積 率 150% 道  路 西 6m 公道    私道負担 - セットバック - 他法令制限 準防火地域,高さ最高限度有,敷地面積最低限度有,日影制限有,高度地区
更新日 令和8年04月03日 次回更新 令和8年04月21日 取引態様 仲介

おすすめ物件! (アクセスの多い物件)