世田谷区深沢3丁目

新着

東急大井町線 尾山台駅 徒歩14分

東急東横線 自由が丘駅 徒歩25分

特徴

LDK18畳以上
床暖房
建物面積100m2以上
閑静な住宅街
角地
道路6m以上 or 5m以上
リフォーム
低層住居専用地域
2沿線以上利用可

セールスコメント

当社が売主のリノベーション住宅です。

第一種低層住居専用地域の静穏な街並みに溶け込む、ビルトインガレージ付の邸宅です。
約18.9帖のゆとりあるLDKは、新規設置されたシーリングファンが心地よい空間を演出。
キッチン・浴室・洗面台・トイレ全ての水回りを刷新し、エアコン4基も新設済みのため、即入居可能なコンディションです。

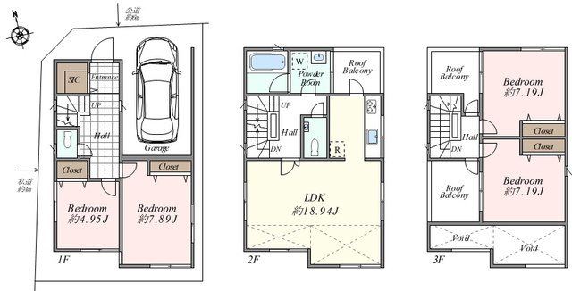
延床面積約38坪の室内には、SICや各室クローゼットなど収納も豊富。
複数のルーフバルコニーからは日の光が差し込み、開放感も演出。
外壁・屋根塗装も実施し、5年間の既存住宅かし保険にも加入予定。

自由が丘も生活圏に収める、安心と気品を兼ね備えた住まいです。

住所

所在地

世田谷区 深沢3丁目

設備・条件

緑豊かな住宅地,閑静な住宅地,平坦地,整形地,都市ガス,角地,トイレ2ヶ所,食器洗乾燥機,2面以上バルコニー,全居室フローリング,吹抜け,TVモニタ付インターホン,ルーフバルコニー,温水洗浄便座,システムキッチン,3面採光,通風良好,陽当り良好,天井高2.5m以上,オートバス,浴室乾燥機,浴室に窓,前道6m以上,全室2面採光,ビルトガレージ,シャッタ−車庫,周辺交通量少なめ,スーパーが近い,リノベーション,内装リフォーム,外装リフォーム,内外装リフォーム,3階建以上,床暖房,全居室収納,LDK18畳以上,2沿線以上利用可,シューズインクローク,小学校 徒歩10分以内

間取り

360° Virtual Tour

担当

奥谷 亮祐
03-5729-1717
自由が丘店 営業部
資格:住宅ローンアドバイザー
私がおすすめしている物件はこちら
物件番号:19592H77
*お電話でお問い合せの際は物件番号をお伝え下さい。


アップタウン自由が丘店、奥谷 亮祐(おくや りょうすけ)と申します。

平成12年3月生まれの25歳になります。
趣味はキャンプ、スキー、登山、自転車、サウナに入ることです。

お客様に寄り添って、より良い住宅のご提案をさせていただきます。

どうぞ、お気軽にお声がけください。

精一杯頑張りますので、何卒宜しくお願い致します。

物件概要

物件番号 19592H77 交通機関 東急大井町線 尾山台駅 徒歩14分
東急東横線 自由が丘駅 徒歩25分
所在地 世田谷区 深沢3丁目 販売価格 13,300万円 (税込) 土地面積 75.47m2 土地権利 所有権 地目 宅地 建物面積 126.77m2
1F車庫13.64m2含む
建物構造 木造 3階建 現況 空家 築年月 平成17年9月 引渡時期 相談 駐車場 車庫 1台
間取り 4LDK 施工会社 - 用途地域 第1種低層住居専用地域 建ぺい率 60% 容 積 率 150% 道  路 北 6m 公道    西 4m 私道 (位置指定道路) 私道負担 16m2  別途有 セットバック - 他法令制限 宅地造成等規制区域,準防火地域,日影制限有,景観法,高度地区
更新日 令和8年02月08日 次回更新 令和8年02月26日 取引態様 売主

おすすめ物件! (アクセスの多い物件)