フューズ・コート175

東急田園都市線 池尻大橋駅 徒歩11分

特徴

-

住所

所在地

世田谷区 池尻4丁目 28-21

設備・条件

-

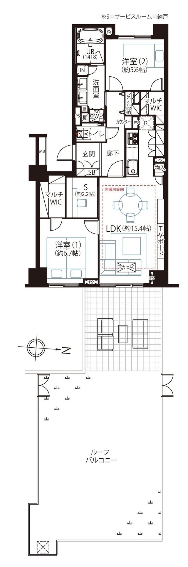
間取り

担当

落合 俊介
03-5797-1101
世田谷本店 営業部
私がおすすめしている物件はこちら
物件番号:39559H16
*お電話でお問い合せの際は物件番号をお伝え下さい。


アップタウン世田谷本店、落合 俊介(おちあい しゅんすけ)と申します。

お客様の立場でしっかりと考え、ベストな提案をさせていただきます。
是非、お気軽にお問い合わせください。

物件概要

物件番号 39559H16 交通機関 東急田園都市線 池尻大橋駅 徒歩11分 マンション名 フューズ・コート175 所在地 世田谷区 池尻4丁目 28-21 販売価格 20,000万円 専有面積 74.45m2 間取り 2SLDK 築年月 平成16年12月 所在階 7階 総戸数 175 戸 バルコニー方位 バルコニー面積 78.97m2 ルーフバルコニー面積 - 専用庭 - 管理費(月額) 12400円 修繕積立金(月額) 19950円 その他費用(月額) 1200円 駐車場 - 建物構造 RC造地上9階建 用途地域 第1種中高層住居専用地域 現況 空家 土地権利 所有権 地目 宅地 引渡時期 相談 更新日 令和8年02月02日 次回更新 令和8年02月20日 取引態様 仲介

おすすめ物件! (アクセスの多い物件)