設備・条件
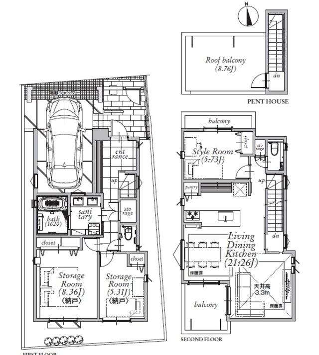
閑静な住宅地,整形地,都市ガス,トイレ2ヶ所,食器洗乾燥機,浄水器,複層ガラス,南面バルコニー,シャワー付洗面台,全居室フローリング,設計住宅性能評価付,建設住宅性能評価付,吹抜け,TVモニタ付インターホン,ルーフバルコニー,温水洗浄便座,システムキッチン,対面式キッチン,省エネ給湯器,都市近郊,3面採光,通風良好,陽当り良好,天井高2.5m以上,TV付浴室,オートバス,浴室乾燥機,市街地が近い,ジェットバス,浴室1坪以上,浴室に窓,ミストサウナ,全室2面採光,ビルトガレージ,シャッタ−車庫,スーパーが近い,高機能トイレ,2階建,床下収納,床暖房,全居室収納,納戸,長期優良住宅,LDK20畳以上,セキュリティ充実,2沿線以上利用可,建築確認完了検査済証,パントリー,総合病院 徒歩10分以内,小学校 徒歩10分以内,全居室複層ガラスか複層サッシ,バルコニー・屋上に水栓あり,EV車充電設備,スマートキー