等々力1丁目
リフォーム済戸建

東急大井町線「尾山台」駅徒歩12分

東急大井町線「等々力」駅徒歩12分

22,800万円(税込)

等々力1丁目

風致地区の緑豊かな住環境に佇むゆとりある大型3LDK邸宅。

南向きの高台に立地し陽当たり通風良好。

令和8年2月新規内外装リフォーム済。

物件概要

価格

22,800万円(税込)

土地面積

171.44m2(51.86坪)

建物面積

136.98m2(41.43坪) ※別途地下車庫部分13.21m2

交通機関

東急大井町線「尾山台」駅徒歩12分

東急大井町線「等々力」駅徒歩12分

所在地

世田谷区 等々力1丁目

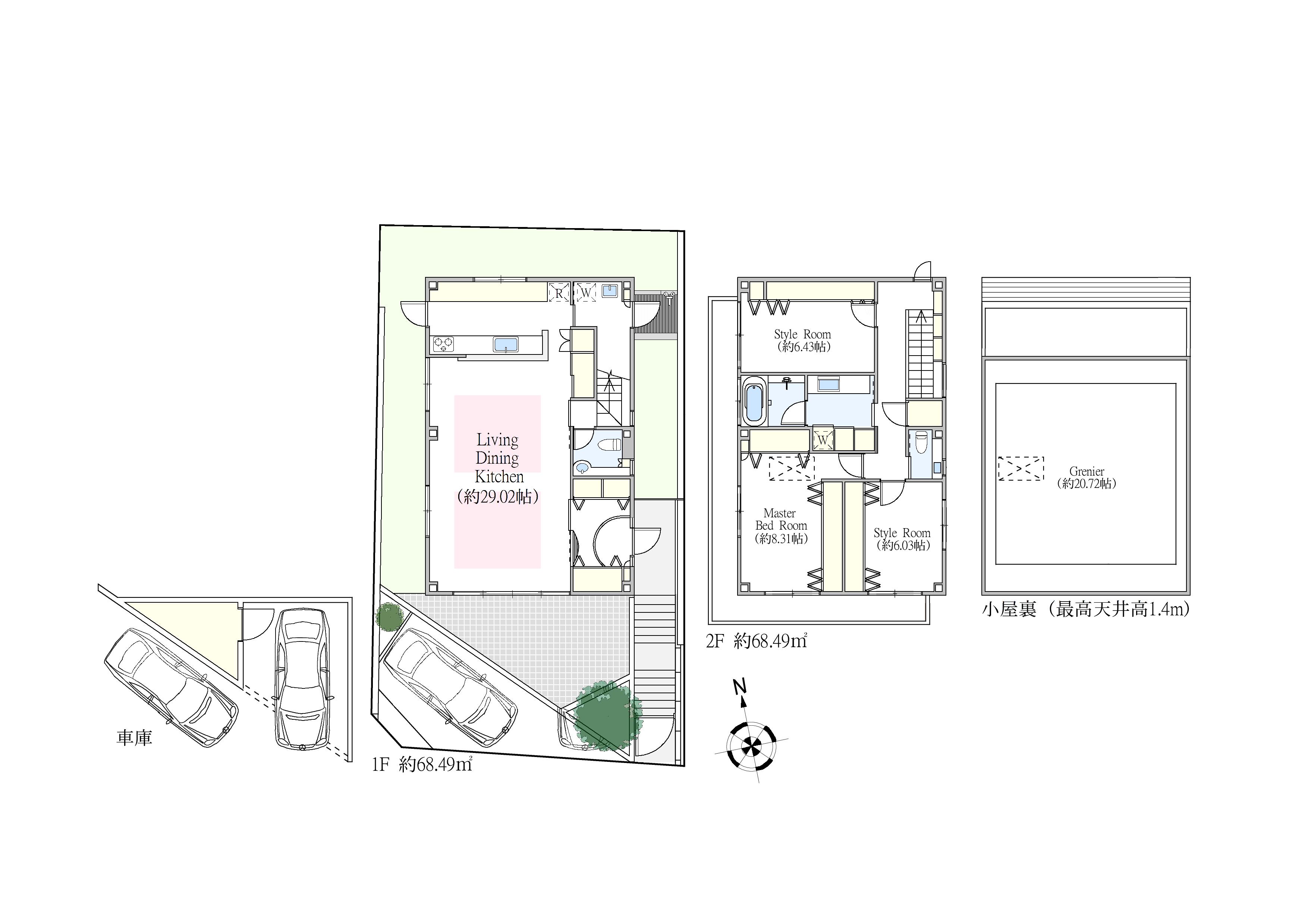
間取図

物件詳細

☐土地権利/所有権

☐地目/宅地

☐土地面積/171.44㎡(51.86坪)

☐建物面積/136.98㎡(41.43坪) ※別途地下車庫部分13.21㎡有

☐築年月/2002年(平成14年)8月

☐建物構造/鉄骨造 2階建

☐間取/3LDK

☐用途地域/第1種低層住居専用地域

☐建ぺい率/40%

☐容積率/80%

☐他法令制限/宅地造成等規制区域,風致地区内,景観法

☐接道/南 6.1m 公道

☐現況/空家

☐引渡時期/相談

☐取引態様/売主

資料請求はこちら

問い合わせ・資料請求

年に創業 周年を迎えました。

これからも世田谷・目黒など山の手エリアの恵まれたロケーションにある物件に絞り、上質の住まいを厳選しご提案いたします。

住み心地のよさ、穏やかな佇まいの街並。

そこに息づく風情や情緒、感性を刺激するお洒落なショップや食通をうならせるレストラン…。

山の手エリアの街中に溶け込むこだわりの建物、クオリティを大切にした物件、住まいにこだわるお客様に向けて情報を発信し続けます。

  • お問合せ(世田谷本店) 東京都世田谷区用賀2-34-13
  • Phone 03-5797-1101
  • Email info@uptown.co.jp